D
Deleted member 8277
Guest
Think again about the lifts, they on demand by pressing the button like all lifts and they seem to work independently so if you dont press the button the lift dont come, I have seen people only press the middle 2 lifts buttons so only those lift operate and they all pile into them, another pain is the straddlers into the lift, you could have a lift ready to go and a pax appears 15m away then another a few meters behind then a numpty will hold the lift for them instead of letting the doors close and let them get the next one........there are 4 lifts (if they all operate) so use them all.This question re lifts has popped up many times. I think its a red herring.
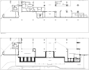
The lifts will be high capacity, operating only across two floors. They'll operate like a shuttle - if at the bottom, go up; if at the top, go down. I suggest that 4 lifts is heavily over-spec'd in case of breakdowns, and in reality most of the time lifts will have only a handful of people in. In any case, with 4 lifts operating concurrently i find it very unlikely that there will be a wait of more than a few seconds to get in - it's likely there will be one with its doors open on the ground floor, one with its doors open on the first floor, one travelling downwards and one travelling upwards at all times and, with a total journey of probably no more than 10 seconds up or down, there'll be a door opening very regularly.
The only gripe really likely is that the doors will probably take longer to open and close than the time for the actual vertical journey - but that is the modern world for you.
The lifts replace escalators which generally, in my view, use space inefficiently. The space opened up where the escalators were previously situated provides plenty of circulation space at the back of the check-in areas - which is basically non-existent currently - whilst also providing significant extra space on the first floor for security or for addition commercial use - as well as making everything much brighter.
Of course, you are probably right that in an ideal world building in a sandbox without space constraints, escalators (lots of them) would probably be a better solution overall. But we dont have that here.
From the plans i saw previously, i think there are stair cores either side of the lift lobby, if people are really desperate.